




























Toscana von Feldkirch: Einzigartige Neubau-Villa zum Verkauf
Preis auf Anfrage
Die Einfamilienhäuser am Rosamichlweg wurden von der Bauart Bauträger GmbH entwickelt. Die Planung erfolgte durch das Architekturbüro Gohm + Hiessberger Architekten ZT GmbH.
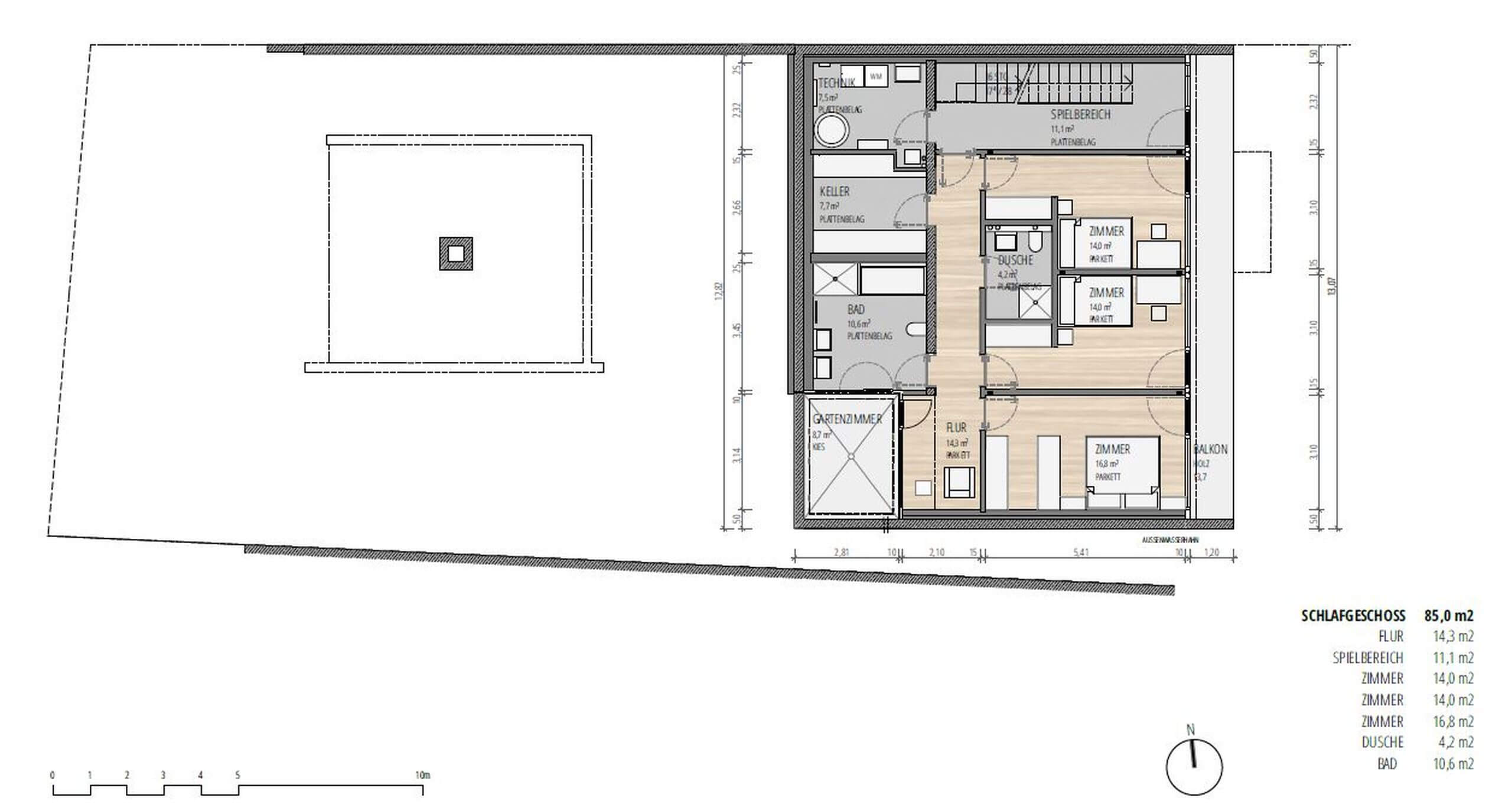
Das Projekt umfasst 3 eigenständige Grundstücke jeweils mit Vorplatz, Garage, Atriumgarten, überdachtem Säulengang und Terrasse, 2-geschossigem Wohnhaus mit Balkonen sowie einem Gartenzimmer.
Die 3 Häuser sind weitgehend uneinsichtig von der Straße her gestaltet. Sie wirken als bungalowartiges Ensemble, da nur das Wohngeschoss beim Zutritt zum Gebäude sichtbar ist. Die großzügigen, z.T. gebäudelangen Verglasungen des Wohngeschosses lassen das loftartige Erdgeschoss (Kochen-Essen-Wohnen) hell und mit der Gartenlandschaft verschmolzen erscheinen. Im Schlafgeschoss befinden sich 3 Schlafzimmer, 2 Bäder, Technikraum und Keller. Ostseitig befinden sich in beiden Etagen Balkone, die über die gesamte Hauslänge gespannt werden.
Die Grundstücke werden über den Rosamichlweg erschlossen. Parkmöglichkeiten für Gäste befinden sich vor der Garage.
Der Rosamichlweg befindet sich im Privateigentum der Anwohner. Rechte und Pflichten wie Geh- und Fahrrechte und deren Kostenschlüssel sind über das Miteigentum geregelt. Es existiert eine Dienstbarkeit über die Verbreiterung der Zufahrtsstraße Rosamichlweg.
Feldkircher Nuancen
Feldkirch besitzt Werte – Werte, die Kunst und Kultur Raum geben, die Begegnung und Zukunft ermöglichen. Feldkirch ist eine der energieeffizientesten Städte Österreichs. Feldkirch besitzt Großstadtcharakter für die, die ihn suchen. Feldkirch ist 800 Jahre alt und die zweitgrößte Stadt in Vorarlberg. Sie bildet ein reizvolles Ambiente für das urbane Leben, das von herausragender Gastronomie, abwechslungsreichen Veranstaltungen und einem geschäftigen Marktgeschehen lebt. Gleichermaßen birgt sie mitunter unbeobachtete, stille Kleinode und unverbrauchte, ursprüngliche Naturlandschaften. Es sind die ganz feinen Nuancen, die Unverwechselbarkeit ausmachen.
Wir freuen uns Ihnen in Feldkirch am Blasenberg eine bezaubernde Immobilie vorstellen zu dürfen.
Herzlich Willkommen.
Zauberberg(e)
„Rund um die Stadt erheben sich lauter Berge, von denen jeder seinen eigenen Reiz hat. Schroffe Felsklüfte wechseln sich ab mit sanften Waldhügeln, englischer Gartenkultur und rotwilden Rudeln. Naturschutzgebiete und Naturdenkmale laden Sie dazu ein, die Werke eines Architekten zu genießen, dem kein Mensch das Wasser reichen kann.“
(Aus Geschichtenträchtig. Feldkirch 2011)
Jahrhundertelang zog sich über Ardetzenberg, Blasenberg und Amberg ein einziges Rebenmeer bis vor die Tore der Stadt der Grafen von Montfort. Die heutige Stadt mit ihrer historischen Kernbebauung geht beinahe stufenlos in den umliegenden Naherholungsraum über. Eine eindrucksstarke, beinahe theatrale Kulisse, einzelne Logenplätze sind teils versteckt vorhanden. Sie treten nicht vor den Vorhang, sie möchten entdeckt werden.
Die Zwischentöne
Am schmalen, leicht ansteigenden Rosamichlweg noch vor der Einfahrt der Wohngemeinschaft St. Michael der Caritas Vorarlberg, rechter Hand gelegen, entstehen 3 neue Einfamilienhäuser. Eingebettet im westlichen Hochpunkt des Blasenbergs, in Richtung Stadt sind die Grundstücke umsäumt von Wiesen und Weiden. Die Häuser sind autonom, entstehen in Nachbarschaft und nutzen, wo es Sinn macht, Synergien.
Die Genialität einer Hauskonstruktion liegt mitunter in ihrer Einfachheit. Die Villen Villa 08a ist das 2. Haus, es steht auf seinem eigenen, kleinen Reich und lehnt sich an. Das Haus öffnet sich zum abfallenden Hang und den umliegenden Obstwiesen mit 2 Balkonen. Der überdachte Gang führt zum Innenhof, der pflegeleicht in einen blühenden Garten verwandelt werden kann. Ranken und Kletterpflanzen können auf Wunsch der neuen Eigentümer Besitz von der Architektur nehmen und die Gartenmauern und den atriumartigen Innenhof verzieren.
3,5% Grunderwerbsteuer
1,1% Grundbucheintragung
3,0% Vermittlungsprovision zzgl. 20 % MwSt.
Vertragserrichtungskosten
Barauslagen
*) Der angegebene Preis ist ein Richtpreis, der in etwa dem möglichen zukünftigen Kaufpreis entsprechen kann. Da der Preis vom Interessenten mit einem dafür ausgestellten Anbot definiert wird, kann er abhängig von der jeweiligen Nachfrage, auch über dem Richtpreis zu liegen kommen. Die Zustimmung erfolgt ausschließlich vom Abgeber durch Gegenzeichnung des gestellten Anbotes!
Die Angaben beziehen sich auf die Auskünfte des Eigentümers. Dieses Angebot ist freibleibend, Irrtum und Zwischenverkauf bleiben ausdrücklich vorbehalten. Alle Angaben nach bestem Wissen und Gewissen. Dieses Exposé ist eine Vorinformation, als Rechtsgrundlage gilt allein der abgeschlossene Kaufvertrag. § 15 der Maklerverordnung gilt als vereinbart.
